
Let Agreed
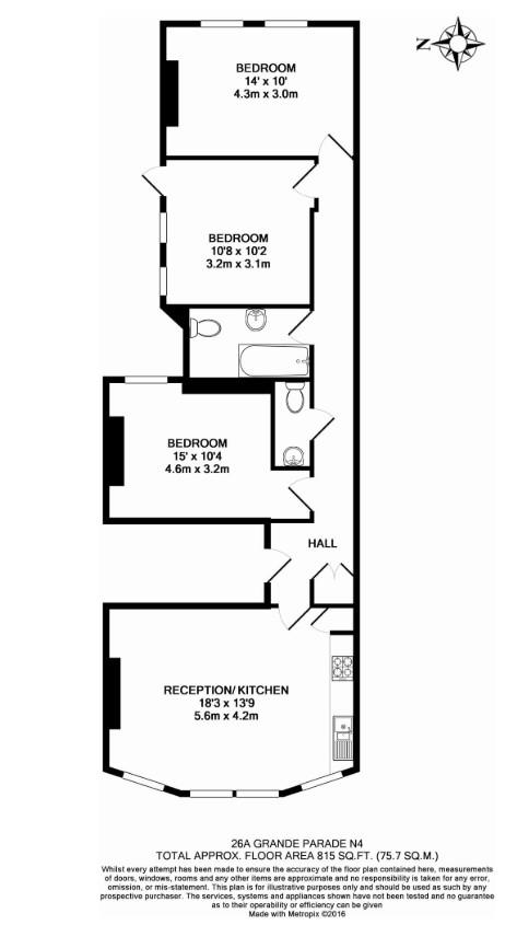
3 bed flat to rent in Glenhill Close, London
AVAILABLE IMMEDIATELY! UNFURNISHED - A very well presented split level first and...

Let Agreed
2 bed flat to rent in Yerbury Road, London
AVAILABLE IMMEDIATELY! A well proportioned and well maintained FURNISHED split...

Let Agreed
2 bed flat to rent in Stanley Terrace, London
AVAILABLE FROM 20TH JULY 2024! Light and airy raised ground floor PART FURNISHED...

Let Agreed
3 bed terraced house to rent in Elm Close, Hargrave Park, London, London
AVAILABLE FROM 9TH SEPTEMBER 2022. Modern and attractive UNFURNISHED terraced...